Complete Package
Description
Inclusions:
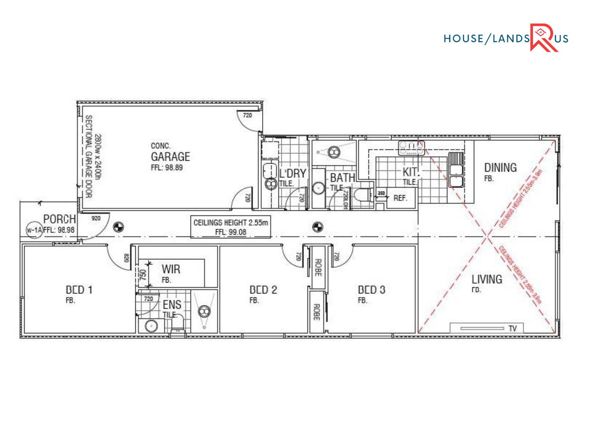
CEILING
• RAKED CEILING IN THE DINING AND LIVING AREAS, WITH A CEILING HEIGHT OF 2550 MM IN THE BEDROOMS
• SQUARE SET
KITCHEN
• GAS COOKTOP 900mm
• EELECTRIC OVEN 900mm
• RANGEHOOD 900mm
• UNDER MOUNT DISHWASHER
• STONE IN KITCHEN (40mm) deluxe range
• STONE IN LAUNDARY (40mm) deluxe range
• STONE IN VANITIES (20mm) deluxe range
• ISLAND BENCH 900mm WIDE (as per plans)
• WRAP CABINETS IN MATT FINISH (SOFT CLOSE)
• SUBWAY TILE CLADDING SPLASHBACK
• OVERHEAD FRIDGE CABINET
• FULL SIZE DOUBLE BOWL KITCHEN SINK
• PULL OUT KTCHEN SINK MIXER
LIGHTS
• LED DOWN LIGHTS - as per plans
• LIGHTS ON FRONT PILLARS.
• WALL LIGHTS
• LED SENSOR SECURITY LIGHTS ABOVE GARAGE DOOR
• LED SENSOR SECURITY LIGHTS IN THE BACKYARD
LANDSCAPING
• FRONT YARD LANDSCAPING
• COMPOSITE DECKING PLUS LANDSCAPING AT BACKYARD
OTHER UPGRADES INCLUDED
• MODERN ENTRY PAINTED TIMBER DOOR WITH FROSTED GLASS PANEL
• NBN IMPLEMENTATION
• HOT WATER SYSTEM 26L
• WINDOWS WITH LOCKS (For All Openable Windows)
• DIGITAL T.V ANTENNA (T.V POINTS x 1)
• TOILET PAPER HOLDERS / TOWEL RAILS/ TOWEL RINGS
• DOOR BELL WITH MONITOR
and more..
Contact us for more information!








