Complete Package (COMPLETED HOUSE)
Description
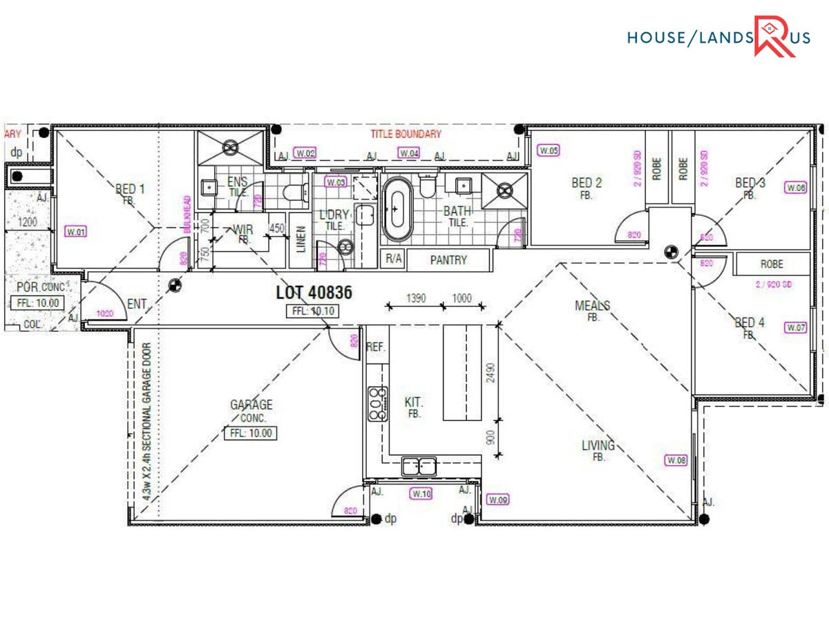
Completed House
Specifications:
-Waffle slab, piers and pads if require as per Engineering Drawings.)
-50mm NASAHI panels and coating system as per manufacturer specs
-Timber framing
-Metal (Colorbond) roof
-Metal (Colorbond) facia, gutters and 100x50 down pipes. Floor & wall finishes as follows:
a. wall (full) and floor tiles at wet areas
b. Painting for other wall areas
c. Tiled 12mm Timber laminate flooring at Living, meal, kitchen areas and bedrooms
-Aluminium windows
-Double glazing of windows & doors in accordance with energy rating report.
-Panel garage door with remote control
-Internal doors, skirting & architraves as per specifications provided
-Insulation bats in accordance with energy rating report
and more..
Contact us for more information!








